Okay so apparently I think of blogging once every year or so. I’ll post a few times and then life takes over again. Originally I created the blog to encourage myself to practice writing regularly – but the regularly part is a struggle. Here I am again but this time, my goal is to use this space to document a home renovation.
I have been wanting to renovate my house since I bought it in 2014. I did some reno at the time – as the master bath was not in great shape and there was a need for replaced carpets and paint. I also added a built in desk as I was working from home. But I wanted to knock down walls, redo kitchen, etc – but couldn’t manage all that at the time.
After around six-eight months of planning, changing plans, rethinking, and finalizing – I am moving forward. I have engaged Preston Price of Walden Lake Construction to complete the job.
I’ve seen Preston’s work and it looks good. He finished work on a house in my neighborhood recently and one of the most impressive things was how neat and clean the job site was left every day by the subs and other workers. And I’ve only heard good things from those that have used his services! So far, Preston has been easy to work with and gives good advice and information.
I am making the updates that I want – including new kitchen, removal of walls, adding of a wall, all new floors, laundry room update, bathroom update, outdoor counter replacement. I will be taking pics along the way and hope to post every few days or so.
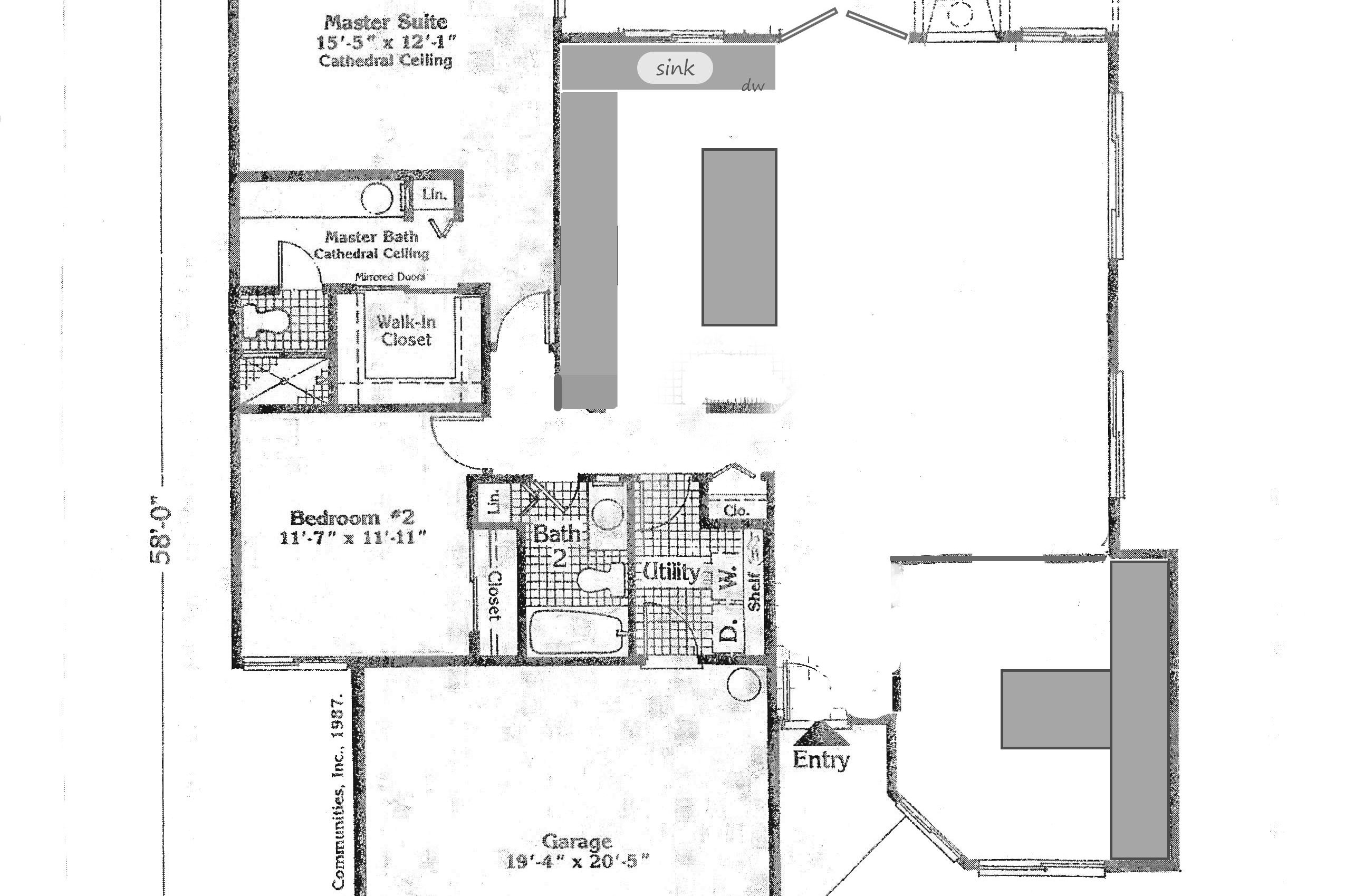
First up is the original floor plan of the house:
Currently I use the original living room as an office. I have built in cabinets and a desk along the right hand external wall. This will remain. This room also is sunken – pure 80s style. There is a short wall between the living room and dining room and just in the doorway to the right to form an entrance.
The wall between the dining and family room will be removed. Two of the angled walls at the entry point to the kitchen will be removed and the short wall between living and dining will turn into a full wall.
This is basically what the new plan will look like, but not to scale. I’ve added the existing rectangles in the front room showing the built-in desk which I’ve had for a few years:
I have a lot to still pick out – floors, counters, paint, light fixtures, etc. But I am narrowing down the choices. Decisions are stressful for me, but hopefully I’ll be happy with my choices!
Demo started on April 21st so I’m already behind, but hope to catch up over the next week as a lot has happened. In the next post, I’ll share “before” pics. It’s a journey!







I adopted Tildy from
Greyhounds are awesome pets for many reasons. While they are seemingly big and tall – they can look like a tiny dog when all curled up. They are typically easy to house train or already are trained. They are relatively quiet which is good for those that work from home or that are in apartments/condo situation. Surprisingly, they don’t need a lot of exercise – a nice 20-30 minute walk a couple of times a day is good and often they can do with less. The opportunity to run now and then is welcome but keep in mind, a greyhound is a sprinter. The running will not last long and there will be lots of rest and sleep after. If you want a good dog for long walks and hikes, the grey can be conditioned to be your companion with that type of activity as well. Some like water, others don’t. Some love dirt, others don’t. Just like other dogs, each greyhound has its own personality.
Tildy, for example, is a very anxious pup. She reacts fearfully with rain, thunder and similar noises. For instance, she seems unfazed by planes that take off from our local small airport (small planes), but during the Lakeland Sun ‘n Fun Air Festival, she is on edge every day – we can hear but we don’t see what is flying in the sky as we are maybe 10 miles from there. The last two years, that week has been really hard on her. Tildy loves people and always happily greets, but she doesn’t need attention. She is quite content to curl up in her spot away from the frenzy. In fact, if she is in the same room with a few people, after a while, she removes herself and goes to find a quieter location for a short period. She is well behaved but will appear to ignore every word, especially when I call her for my own need. We have tried a whole training regimen but she often shuts down after realizing she needs to repeat a task to get it right.
home so I am not away from her that often. She is not destructive and seems to settle fine if I am truly gone. She is good about letting me know that someone is around if I am not in the room with her and that basically is the only time she barks. She does ‘roo’ when she is happy to see someone or just happily wants to talk to me. It is my favorite thing to hear because she can be quite vocal!






